Cobertura em Reforma vista lateral Mar – Leblon
- R$ 10.500.000
Cobertura em Reforma vista lateral Mar – Leblon
- R$ 10.500.000
Descrição
Cobertura duplex exclusiva no Leblon, localizada na cobiçada Rua Almirante Pereira Guimarães, em plena quadra da praia, reunindo sofisticação, conforto e uma das melhores localizações do Rio. Com 330 m² muito bem distribuídos, o imóvel conta com três quartos, sendo duas suítes — destaque para a suíte master com amplo closet — além de dependência completa. Totalmente reformada, a cobertura possui marcenaria sob medida em todos os ambientes, acabamentos de alto padrão e projeto pensado para oferecer funcionalidade e elegância. A área social é um verdadeiro diferencial, com piscina privativa e espaço gourmet ideal para receber, tudo isso com vista lateral para o mar, trazendo luz natural e a brisa do Leblon para dentro de casa. O imóvel dispõe ainda de duas vagas de garagem.
Previsão de entrega em 6 (seis) meses, sendo uma oportunidade rara para quem busca uma cobertura moderna e a poucos passos da praia, com a possibilidade de personalização da obra. O futuro proprietário poderá escolher o estilo dos armários, os acabamentos e os detalhes finais, permitindo que a cobertura seja concluída com a sua personalidade e estilo.
Observação: Opção de personalização da planta.
Endereço
Abrir Mapa-
Cidade: Rio de Janeiro
-
Estado: Rio de Janeiro
-
Área: Leblon
-
País: Brasil
Detalhes
Atualizado em janeiro 26, 2026 no 3:03 pm-
ID do Imóvel GM0059
-
Valor R$ 10.500.000
-
Área do Imóvel 330 m²
-
Quartos 3
-
Salas 2
-
Banheiros 4
-
Vagas 2
-
Ano de Construção 2026
-
Tipo de Imóvel Cobertura
-
Status da Propriedade Venda
Detalhes adicionais
-
IPTU R$ 18.300
-
Condomínio R$ 5.400
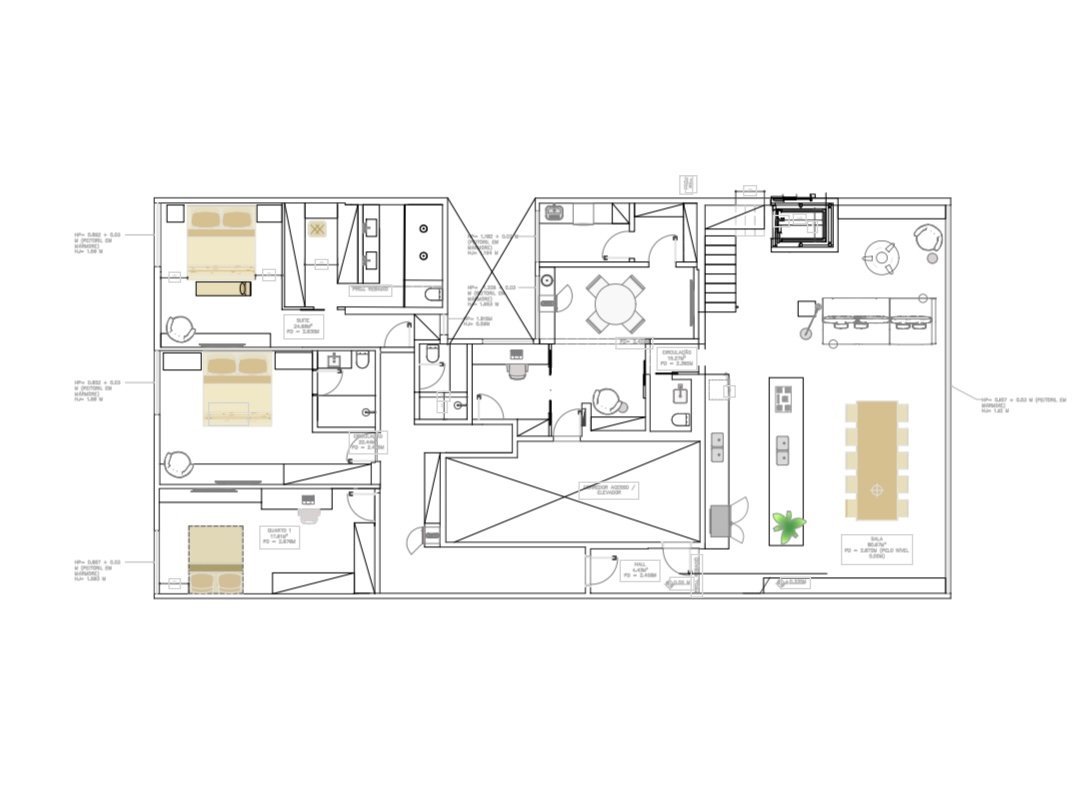
Plantas
- Tamanho: 250m²
- 3
- 4
Descrição:
Essa planta é do primeiro pavimento e conta com cozinha integrada, sala ampla com adega, três quartos — sendo duas suítes, uma delas a master com closet — além de uma planta circular que garante excelente fluidez entre os ambientes. O pavimento dispõe ainda de plataforma elevatória instalada na sala, agregando conforto e acessibilidade ao projeto.
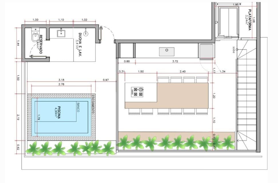
- Tamanho: 75m²






